La casa se levanta con profundo respeto y discreción en medio de un paisaje idílico, en una de las zonas altas de una gran fracción de campo flanqueado por bosques de coronilla y una laguna artificial –tajamar- . Las vistas, hacia los cuatro puntos cadinales, enseñan caminos que se pierden en el horizonte, que se bifurcan. Surgen como imágenes de pinturas de Jorge Damiani o de José Cúneo.
Cuando el habitante contrata los servicios de Flores Flores ya disponía de la tierra. Una importante fracción de campo en el José Ignacio rural. La idea era construir una casa para las vacaciones, cerca del mar pero ubicada en el campo. Una familia argentina, con hijos adolescentes solteros y casados y la necesidad de estar todos juntos cada vez que es posible, pero también ocuparla solos. Paz, sosiego, intimidad, esas eran las necesidades básicas de la pareja que encargaba la obra. Numerosos encuentros con ellos, largas caminatas por el lugar y un trabajo de investigación delicado le permitió a Flores Flores descubrir para quién estaba trabajando, una pareja que disfrutaba mucho del campo, de las caminatas y de la familia. También de recibir amigos. La vivienda debía ser espaciosa y al mismo tiempo disponer de comodidad para albergar a la pareja, ya mayor, a sus hijos, y también a los amigos. Al mismo tiempo era necesario prever la ubicación de los caseros, ya que la casa será ocupada esporádicamente durante todo el año.
“…una de las discusiones más arduas con los habitantes se centró en la utilización de la piedra. Debo confesar que no es un material al que apele, no me entusiasma mucho construir con piedra. Pero pronto descubrí que para la pareja que habitaría la casa era importante, no se trataba de un capricho por estar a la moda, la piedra representaba para ellos al paisaje y los animaba espiritualmente. El segundo tema que recuerdo fue motivo de largo debate consistió en mi idea de generar una casa que pudiera, pese a su escala, ocupa mil metros cuadrados, reducirse hasta convertirse en un cómodo apartamento. La pareja gusta mucho de recibir a sus hijos y a los amigos, pero también viaja sola y la idea de habitar una casa enorme me preocupaba mucho, generé a partir de su dormitorio una suite que en realidad es algo así como un apartamento que pueden ocupar sin tener que vivir una enorme casa vacía. Finalmente, en el comedor principal para mí la mesa debía ser circular, sin cabeceras y sin aristas para que la energía de la conversación que produce la ingesta circulara fluidamente. En este punto no tuve suerte, a ellos les fascinan las mesas rectangulares, entonces me concentré en trabajar el espacio para dar lugar a las cabeceras en un intento por evitar la fuga de energía por los lados…” Estas conversaciones y discusiones acaloradas, Flores Flores es muy temperamental, se produjeron antes que el Arquitecto dibujara una sola línea. Integraban la parte medular de la primer etapa del rito de la construcción, conocer al habitante, descubrir sus claves, descifrar sus gustos y necesidades. La elección del lugar era delicada, la amplitud del paisaje sugería distintas posiciones. La ligera ondulación del terreno y las vistas que se perdían en el horizonte señalaron primero al enorme tajamar ubicado al pie de una elevación significativa en el entorno. Luego unos bosques de carbonilla muy espesos. Allí surgió la idea que llevó semanas de caminatas y reflexiones. Entre las coronillas y el espejo de agua, allí debía levantarse la casa, en una elevación que permitiría prolongar las vistas y dotar al edificio de la magia que imponen los rituales paganos de la humanidad. Un enorme muro de piedra de casi sesenta metros de largo demoró la obra al menos un mes. El análisis de la altura del muro que encontramos al atravesar el bosque achaparrado de coronillas debía mantener la perspectiva correcta para impactar y marcar.
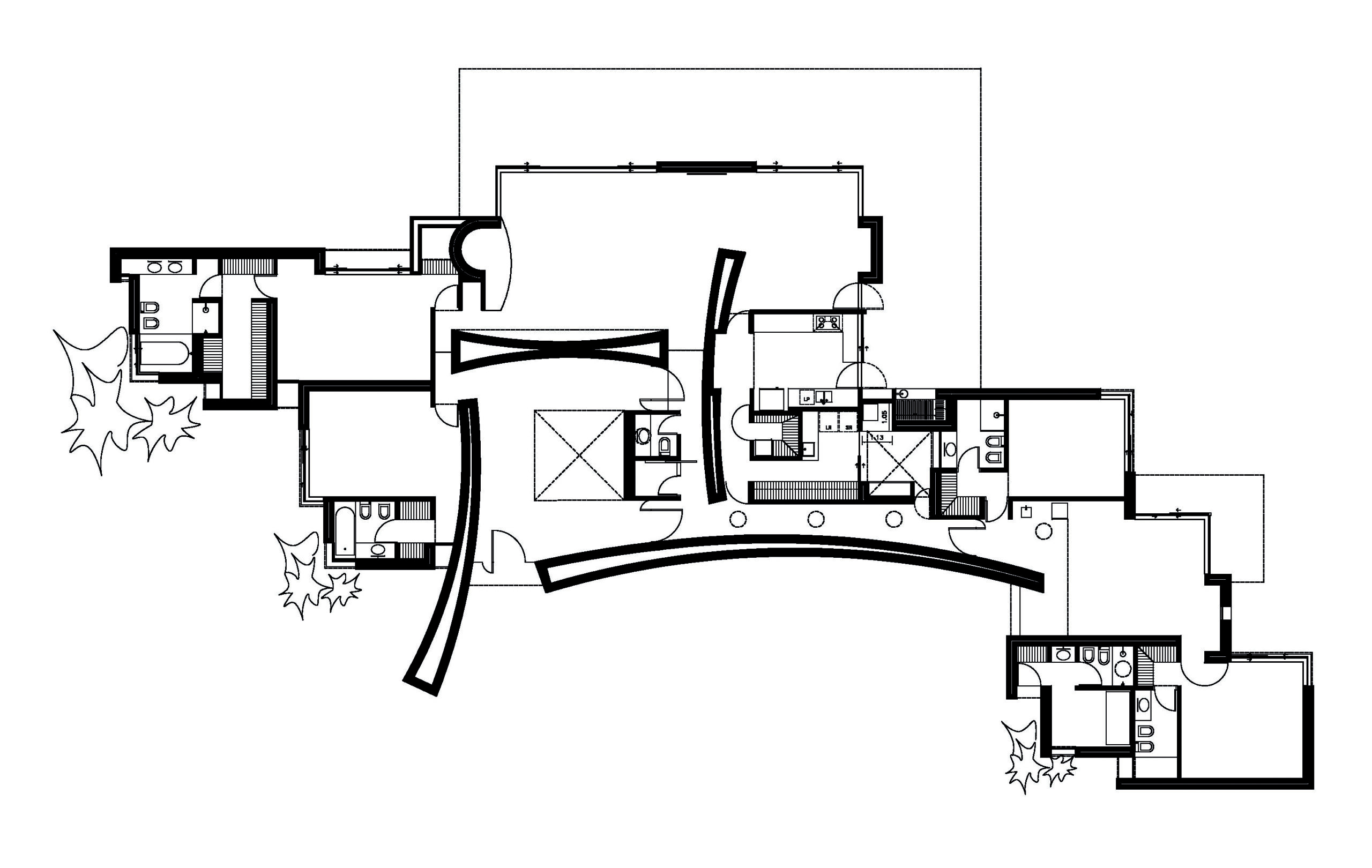
“…confieso que intentando resolver el tema de incorporar a la piedra pensé en este muro y al hacerlo recordé la fortísima impresión que me generaron los edificios jesuitas que descubrí en Colonia y en el Norte Argentino. Imponentes, majestuosos. Y a la vez simples y contundentes…” Más que una abertura, el ingreso está marcado por un vacío que genera el imponente muro. El ritual de ingresar a la casa impone el efecto de la inducción que nos instala en medio de un gran patio abierto, con una fuente que no tiene ruido, “…es un espejo de agua, a los habitantes les preocupaba no sentir el ruido que genera el agua en movimiento entonces eliminé el concepto de la fuente manteniendo la forma y consagrando la energía del agua en un espejo que aún en silencio resulta vital…” Este gran patio abierto tiene una galería perimetral techada que ordena la circulación, a la izquierda se abre con una gran calle de circulación – corredor- que comunica con las dependencias previstas para los chicos y adolescentes y también las visitas. A un lado y separado por el espejo de agua otra calle nos introduce en el sector principal de la vivienda, un hall de recibo que comunica con un imponente living. El comedor y el departamento principal están volcados hacia el ala contraria del edificio. La cocina funciona como vínculo entre los dos grandes sectores de la casa. El ritual de la preparación del alimento une, integra, ordena.
La riqueza espacial sorprende, los ambientes son generosos pero sorprendentemente humanos. Una gran terraza parcialmente cubierta por lozas invertidas recorre el edificio siguiendo la línea recta y ciega del muro y se abre con la misma fuerza con que aquel se cierra, hacia el espejo de agua del tajamar y hacia los caminos que en el horizonte señalan distintas rutas. Las líneas rectas del edificio se quiebran generando el efecto virtual de la Arquitectura de Flores Flores, las aberturas son vacíos inductivos y ojos que miran hacia afuera, los muros se desencuentran generando en los delicados desfasajes aberturas que iluminan.
Esta casa nos recuerda otras del mismo autor que hemos publicado anteriormente, San Isidro, Manantiales, Punta Ballena, tiene algo de todas y al mismo tiempo tiene elementos nuevos. Es la depuración de la idea original de Flores Flores sobre la casa y el paisaje.
Fotografías José Pampín






























